Przebudowa i zmiana sposobu użytkowania budynku usługowo-mieszkalnego
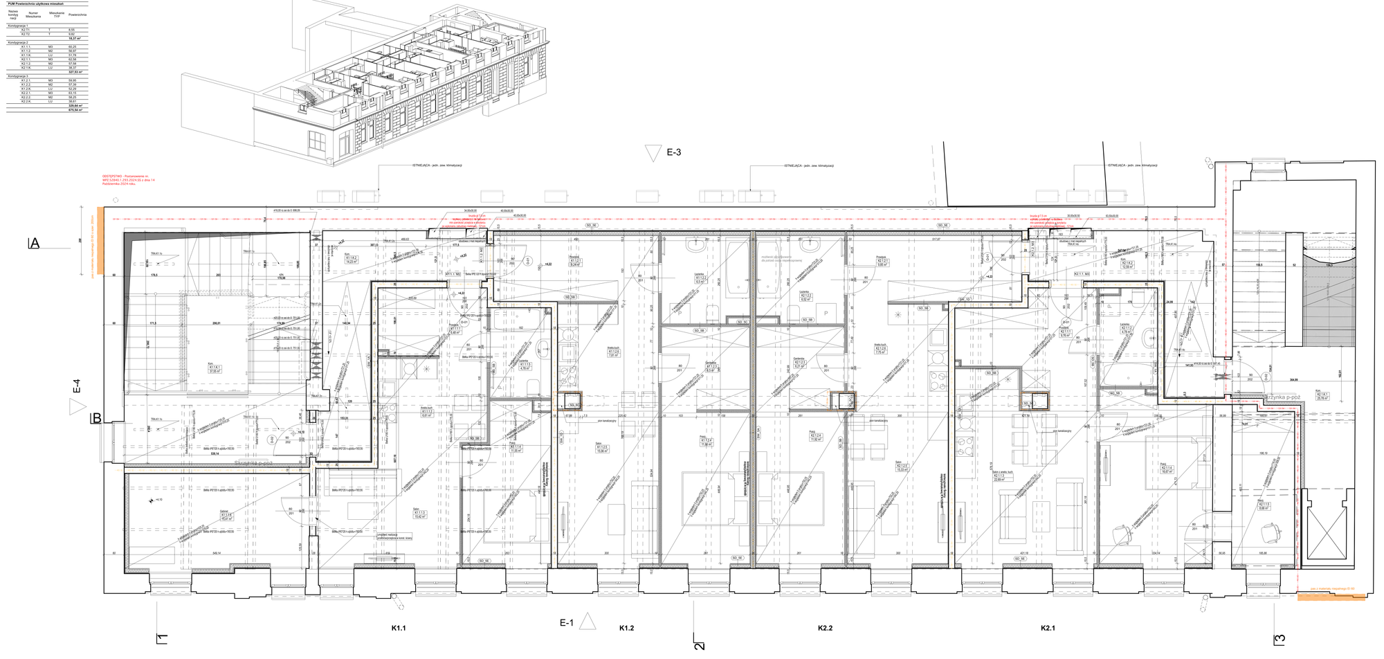
Przedmiotem inwestycji jest przebudowa oraz zmiana sposobu użytkowania części budynku usługowo-mieszkalnego – z funkcji usługowej na mieszkalną – na drugiej i trzeciej kondygnacji obiektu. Projekt zakłada utworzenie 8 lokali mieszkalnych o powtarzalnym układzie funkcjonalnym, po 4 mieszkania na każdej kondygnacji. Każda z dwóch istniejących klatek schodowych będzie obsługiwać cztery mieszkania.
Cztery spośród nowo projektowanych lokali posiadają dostęp do windy i zostały zaplanowane z możliwością dostosowania do potrzeb osób z niepełnosprawnościami. Dla mieszkania nr K2.2 przedstawiono przykładową aranżację uwzględniającą pełną dostępność.
W zakresie inwestycji przewidziano:
- dostosowanie klatek schodowych do aktualnych wymagań w zakresie ochrony przeciwpożarowej,
- adaptację istniejącej infrastruktury technicznej do nowej funkcji,
- minimalną ingerencję w zewnętrzną strukturę zabytkowego obiektu,
- zachowanie istniejących podziałów stolarki okiennej i drzwiowej, zgodnie z zaleceniami konserwatorskimi.


Dojścia do budynku zaprojektowano od strony południowo-wschodniej i południowo-zachodniej. Wjazd na dziedziniec z parkingiem będzie prowadzony od strony południowo-wschodniej.
Obiekt stanowi część zespołu poprzemysłowego dawnej fabryki sukna bielskiego fabrykanta Büttnera, wpisanego do rejestru zabytków. Wszystkie prace objęte są uzgodnieniami z właściwym Wojewódzkim Konserwatorem Zabytków.

